漳州一中學高中新建專案,最新進展!

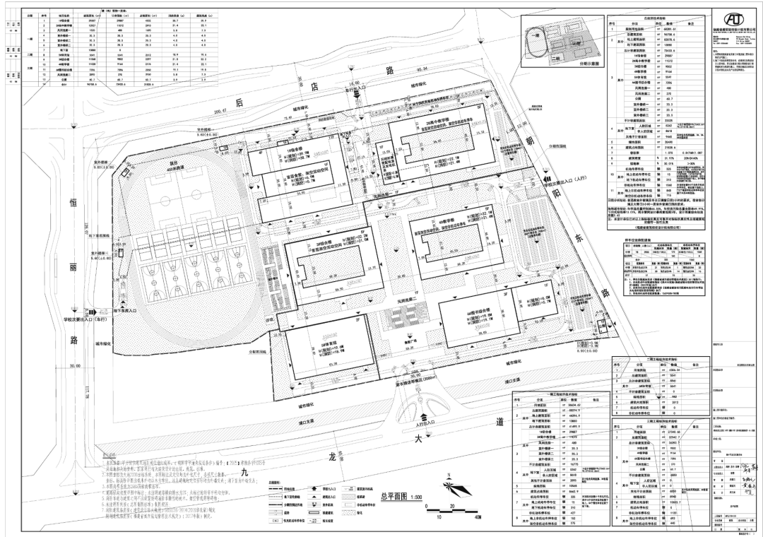
漳州市龍文區第二中學(朝陽中學)

高中部分新建專案

獲得建設工程規劃許可

漳州一中學高中新建專案,最新進展!

漳州一中學高中新建專案,最新進展! 漳州一中學高中新建專案,最新進展!

展開全文

漳州市龍文區第二中學(原朝陽中學)創辦於1993年9月,2021年8月更改為現名中學

學校佔地面積37362平方米,建築面積17493平方米,綠化面積3232平方米中學。現有初中23個教學班,高中6個教學班;學校佈局合理、功能區劃分科學,校園設施完善、裝置先進,環境優美。現有教學樓、綜合實驗大樓、學生公寓、學生食堂等建築;學校還設有標準化、現代化的教學設施。

來源/漳州市自然資源局、漳州市龍文區第二中學

編 輯/葉 雲

本站內容來自使用者投稿,如果侵犯了您的權利,請與我們聯絡刪除。聯絡郵箱:[email protected]

本文連結://www.sdhbcy.com/post/3554.html

🌐 /